云南宿营车厂家
云南宿营车厂家
产品价格:¥880000(人民币)
  • 规格:完善
  • 发货地:湖北随州市
  • 品牌:
  • 最小起订量:120
  • 诚信商家
    会员级别:钻石会员
    认证类型:企业认证
    企业证件:通过认证

    商铺名称:程力专用汽车股份有限公司

    联系人:杜经理(小姐)

    联系手机:

    固定电话:

    企业邮箱:15897612777@39.com

    联系地址:湖北省随州市南郊程力汽车工业园

    邮编:441300

    联系我时,请说是在百强农机网上看到的,谢谢!

    商品详情

      程力集团—宿营车—通讯车—淋浴车—消防车—体检车—更多详情咨询15897612777杜经理  15972783339戢经理

      汕德卡 24 人宿营车

      程力集团24人宿营车
      车辆型号:CLW5160TSYASL
      重汽汕德卡G5底盘,5800mm轴距,曼机350马力发动机,其主要用途是用于消防、部队户外的救yuan现场,给救yuan 人员提供休息场所,最大限度提高他们作战能力的后勤保障车辆。
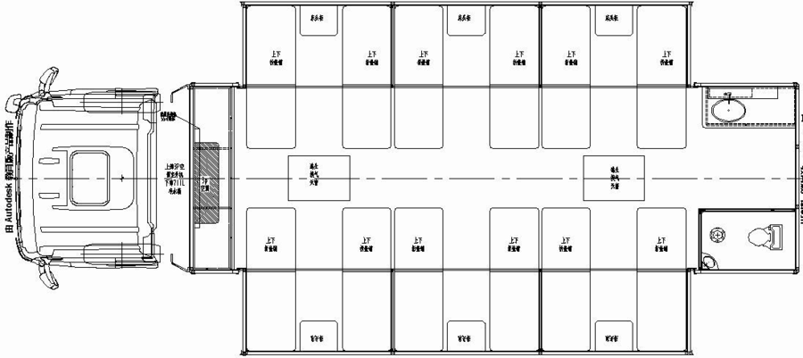
      车厢采用液压双拓展结构,隔热保温,防雨防火防辐射,内部为上下铺共24个铺位,每个床铺配读书灯和带USB接控插座,独立储衣柜,公区配有多媒体设备,空调、饮水机、冰箱、电磁炉、微波炉等生活设备,以及独立卫生间及洗漱设施,能够为24名户外救yuan人员提供温馨舒适的宿营环境和日常起居需求。同时它还有自供电能力,标准工况单次供电时长约四到六小时。

      一、功能需求分析

      本车辆选用重汽汕德卡底盘作为载车平台,以满足搭载物品、司

      乘人员、提供舒适的宿营空间和适应道路情况的需要,并对车辆进行

      改装,以适应客户群体的需要。

      宿营车为了方便官兵远离营区执行野外任务,不便回到原有营房

      就寝;为了保障任务顺利完成,只能原地轮换值班休息,宿营车人性

      化的设计、保障了每一位官兵休息质量,从而精力充沛的投入战斗中

      去;

      二、宿营车具有以下特点:

      1、车厢内部布局合理,空间利用率高。

      2、能够很好的保障官兵在执行任务时,随时随地轮换值班、休

      息;车辆内部配备冷暖空调、加湿系统、空气净化系统、多媒体系统、防

      蚊虫纱窗,帘、独立床铺、卫生间淋浴等;

      二、方案设计介绍

      整车的尺寸约为 10.5×2.55×4m(长×宽×高),车厢长约为

      8.1m;厢体左、右展开侧拉扩展舱,长约为 6000mm, 一侧扩展宽度

      约为 1080mm;

      左侧侧防护裙边从车头到车尾依次是:主车油箱、净水箱;右侧

      侧围从驾驶到尾部上部为肆组红蓝爆闪灯(组合式);中间为 3

      套800x500mm,右后 1 套,房车专用窗户、带纱窗,配遮阳卷帘;尾

      部为卫生间配房车专用窗户、带纱窗,遮阳卷帘;

      右侧防护裙边从车头到车尾依次是:主车制动系装置、液压控制

      系统、电器控制箱;

      厢体顶部铺设花纹铝板,可有效的适应雨雪不同情况下的防滑要

      求;

      车顶部从驾驶室到尾部依次是:长条警灯(按需)、车顶净水箱、

      空调、换气天窗、登顶扶手;

      程力环卫应急装备车厂厢体尾部上为两组红蓝爆闪灯、右后部为登顶折叠踏板、中间为

      上车车门,选用专用门锁、下为隐藏抽拉梯(不锈钢);

      尾部顶部装有倒车监视摄像头,将车尾部影像传送至驾驶室;

      厢体外部根据国家道路管理规定设置各种信号指示灯;

      三、平面布局图

      四、实物外观参考照片

      五、整车改装后满足的各种要求及相关标准

      1)高标准、科学改装,保证车辆具有优良可靠性能

      1、车体改装符合国家和行业相应标准;

      2、改装后整车各项主要性能指标不低于原车性能指标;

      3、根据汽车底盘(轴距、承载、额定总重)和用户需求对整车

      进行优化布局设计,确 保轴荷分配及左右配重应合理,同时保证具

      有最大的工作空间,各功能区的设计科学、 合理, 避免工作时出现

      相互交叉影响;

      4、整车设计使用年限在 10 年以上,车体各部做相应的防锈、

      防腐蚀处理;

      5、车体改造完成后进行整车性能测试,如行驶试验、载荷平衡

      测试、淋雨测试等,确保整车性能符合设计要求;

      2)安全环保材料,保证安全

      1、改装原材料采用符合相关标准并通过“CCC”质量认证的材料,

      各种材料具有无污 染、绿色环保材料、防火/防水材料;胶为汉高

      无苯胶;各项性能符合相应材料标准;车 外螺钉、螺母、垫片等紧

      固件全部选用不锈钢 1Cr18Ni9Ti 材料,铆钉可采用铝铆钉;车 顶

      平台骨架采用矩管电泳处理;车顶平台采用铝合金花纹板;车外喷涂

      与原车相同的金属漆。

      2、全车采用防火材料,保证车辆的防火性能;

      3、所有改装用的胶、漆、板材全部采用环保材料,保证车内环

      境质量;

      4、改装不改变整车配重及重心,保证车辆的侧向稳定性和刹车

      性能;

      3)科学配重,保证车辆承载及稳定性,提高安全性

      1、为确保整车性能,在整车设备选用时,我们在确保质量的前提

      下,尽量采用重量轻 的设备及材料,以减小整车的重量。在进行总

      程力环卫应急装备车厂程力环卫应急装备车厂

      体布置时,我们对整车设备进行了合理的布置, 注意前、后轴的轴荷

      分配比例及左右两侧的重量平衡,并进行校核,确保前后轴荷在厂家

      规定的范围内。

      2、设计采用全 3D 数模设计并运用科学合理仿zhen手段确保我们

      的车厢耐用稳固:

      3、仿真及有限元分析确保车厢顶部负载 2 吨及侧碰撞负载 1.5

      吨时车厢骨架相对变形 量符合相关法规标准,确保厢内设备的防护

      及乘员安全。

      六、配置表:

    0571-87774297